Однокомнатная квартира 40,42 м2 по ул. Автозаводская 26 за 18184958 руб.

Однокомнатная квартира по ул. Автозаводская, 26 в Москве
Цена 18 184 958 р. (449 900 р./м2)
Подать заявку на ипотеку
Район Даниловский
Адрес Автозаводская, 26
Этаж 13/20
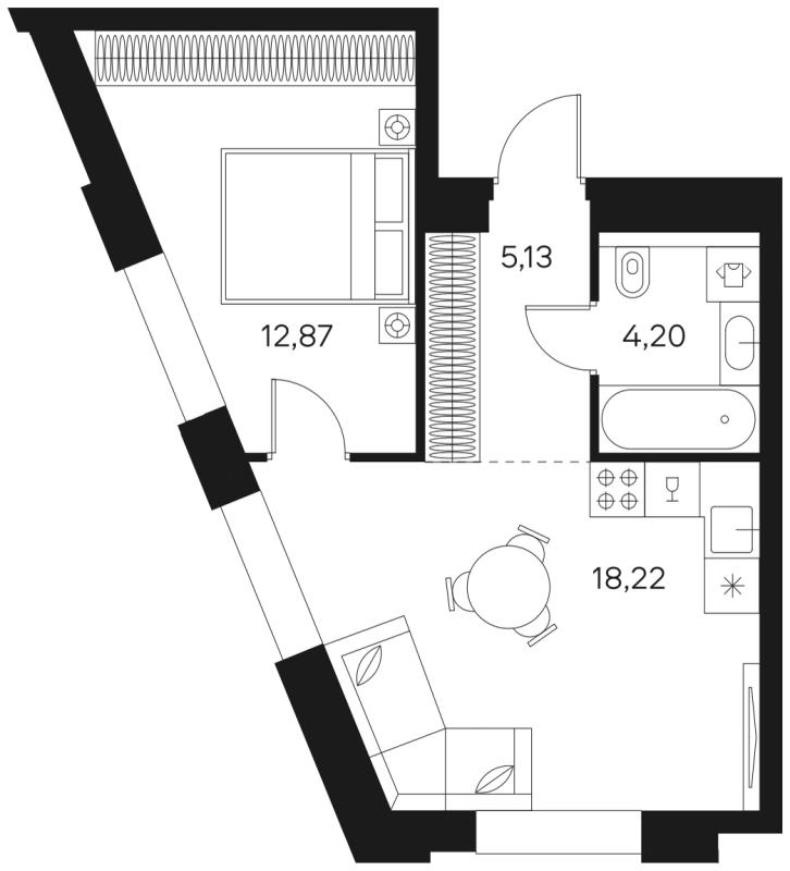
Площадь общая 40,42 м2, жилая 12,87 м2, кухни 18,22 м2
Кол-во комнат Однокомнатная
Продается 1-комн. квартира, площадью 40.42 м2 в 13 мин. пешком от м.Тульская, район Даниловский. Возможен вариант покупки с использованием ипотечных средств. Жилая площадь 12.87 кв.м, кухня 18.22 кв.м, ремонта нет, совмещенных санузлов - 1. На полу стяжка, окна выходят во двор. Квартира располагается на 13 этаже 20-этажного монолитно-кирпичного дома в ЖК FORST 2024 года постройки. Застройщик - Forma, закрытая территория. Подземная парковка, есть гостевые парковочные места, парковка с охраной. Обеспечение безопасности: видеонаблюдение, круглосуточная охрана, консьерж, противопожарная система, пропускная система. Инфраструктура: детский сад, детские площадки, спортивные площадки, места для отдыха, супермаркет, рестораны, коммерческие объекты.
Описание дома
Этажность дома 20
Объявление № 21668731
Дата подачи:
27 марта 2025 г. 11:00
Дата обновления:
27 марта 2025 г. 11:18
Просмотров 19 Хотите продать быстрее?

Продавец
Отдел продаж
Показать номер телефона
Пожаловаться
Комментарии:
Добавить